本文講解安全疏散距離的控制原則及要求,同時提出《建規》圖示的3.7.4的不妥之處。
安全疏散距離,是從室內疏散至安全區域的距離,是控制安全疏散設計的基本要素。
通常情況下,火災條件下人員進入安全出口,即可認為到達安全區域。因此,安全疏散距離包括房間內任一點至房間直通疏散走道的疏散門的直線距離,以及疏散門至最近安全出口的直線距離。
一、除躍層式住宅的戶內樓梯、商業服務網點的室內敞開樓梯以及躍廊式住宅的戶外樓梯等情況外,疏散距離的控制通常以樓層的防火分區為單位確定,安全疏散距離的控制,通常只考慮水平疏散距離,不考慮疏散樓梯等豎向疏散通道的距離。
疏散樓梯間、防煙樓梯間的前室、室外樓梯以及符合要求條件的連廊和天橋等,通常認為是相對安全的區域,火災條件下人員進入這些區域,即可認為到達安全區域。因此,這些區域的入口通常稱為安全出口,比如敞開樓梯間的出口、封閉樓梯間的門、防煙樓梯間的前室門,室外疏散樓梯的出口,符合條件的連廊和天橋出口,以及直接通向室外安全區域的房門等,這些出入口均屬于安全出口。

敞開樓梯間

封閉樓梯間

防煙樓梯間及前室

連廊和天橋
二、疏散距離均為行走直線距離,通常不考慮設備、家具及辦公桌椅等障礙物的影響,但需要考慮墻體遮擋的影響。
1、疏散距離均為行走直線距離,當計算室內最遠點至最近疏散門(或安全出口)的直線距離時,通常不考慮設備、家具及辦公桌椅等障礙物的影響,但對于室內隔間(即使隔間不到頂)的情況,需要考慮墻體遮擋的影響,要按其中的折線距離計算。
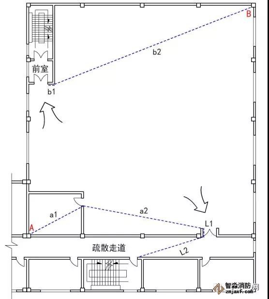
如圖示一所示:B點至安全出口的疏散距離為(b1+b2),A點至安全出口的直線距離包括A點至疏散門的直線距離(a1+a2)和疏散門到安全出口的直線距離(L1+L2)。

圖示一
2、規范圖示爭議:新版《建規》圖示3.7.4,標示了廠房內任意一點到安全出口的直線距離(圖二),本示例存在室內隔間,對于隔間內的任意一點,應采用行走直線距離計算,宜應采用圖示三的方案,A點至安全出口的疏散距離為(a1+a2),B點至安全出口的疏散距離為(b1+b2)。

圖示二
(《建規》圖示3.7.4沒考慮隔間墻體遮擋的影響,不妥)

圖示三
(建議方案,隔間內疏散距離應考慮墻體遮擋的影響)
三、涉及樓梯部份的疏散距離,梯段部份的距離按梯段水平投影長度的1.50倍計算。
對于躍層式住宅的戶內樓梯、商業服務網點的室內普通樓梯以及躍廊式住宅的戶外樓梯等情況,梯段部份的距離按梯段水平投影長度的1.50倍計算。
如圖所示的室內雙跑樓梯,梯段和休息平臺部份的疏散距離為L=1.5×L1+L2+1.5×L3

四、民用建筑、車庫、廠房等都涉及安全疏散距離要求,但倉庫場所人員較少,沒有明確的安全疏散距離要求。